RESIDENTIAL PROJECTS

portfolio details image

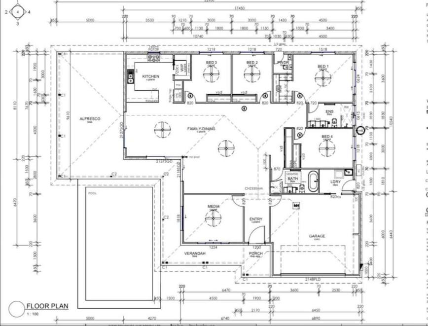
Sujan Thapa Residence

There are quite a few things to consider when designing a residential project. In this project, we have focused on the client's needs and preferences, the site's context, and the local building codes and regulations. We have also considered the environmental impact of the project and the sustainability of the materials and systems used. The result is a beautiful and functional home that meets the needs of the client and respects the natural and cultural context of the site.

Planning and designing a residential project is a complex process that requires a lot of expertise and experience. At Sage Engineering, we have experienced team of experts who can help you with all aspects of your residential project. We can help you with site planning, building design, interior design, and landscape design. We can also help you with the construction process and the selection of materials and systems. We can help you with all aspects of your residential project, from the initial concept to the final construction.

Summary

Project Type:
Residential Project
Project Completion:
25 July, 2022
Client:
Sujan Thapa
Location:
NewRoad TBA, Urraween, QLD

Let’s Work Together

Let's Create Your Dream Space Together!

let's build